MENU

積水ハウスの平屋ってぶっちゃけどうなの??              ~6ヵ月住んで見えてきた実情(間取り編)~

今回の記事では

積水ハウスで平屋を建てて、6ヵ月住んだ「実際のところどうなの?」という実情を

【間取り】を中心に、こだわりポイントをお伝えします。

こんにちは!きょんです!

きょんさん~
平屋に憧れはあるけどネットで見てるだけだとわからないんです、、

なるほど、平屋の情報収集には困るよね。。
今回は、平屋に6ヵ月住んだ感想を伝えるので参考にしてね!

目次

そもそも平屋って需要はあるの?

平屋の種類と特徴(木造・鉄骨造)国土交通省の建築着工統計によると  

10年前の2015年平屋着工数:4,600棟→2023年の平屋着工数は57,848棟→2024年の平屋着工数は61,345棟     

つまり10年前の2015年の34,600棟から2023年まで、およそ1.7倍に需要が増加しています。

出典:建築着工統計

積水ハウスの平屋はどんなものがあるの?

積水ハウスは、鉄骨構法「ダイナミックフレーム」木造構法「シャーウッド構法」を選ぶことができます。

何がすごいかって

30帖を超えるような大空間のリビングでも、柱なしで建てることができるので、平屋特有の開放感あふれる空間が実現可能なんです!

さらに「邸別自由設計」と呼ばれる、夢や希望に基づいて暮らし方やこだわりをデザインしてくれるという、ハイレベルな提案も行っています。

ヨガをしたり、子供と遊んだり、趣味の時間を大切にしたりと、こだわりを実現したい人にはぴったりですね!

間取りとこだわり ~我が家の間取りを成功に導いたこだわりを7つご紹介します~

回遊動線をやめ

回遊動線は憧れではありますが、家が大きくなるとともに費用がかさむため断念しました。

設計士の最初の提案では回遊動線(LDK→洗面→WIC→寝室→LDK)でしたが、
現在の間取り(31.76坪)よりも0.61坪大きく、坪単価160万円で計算するとプラス100万円!!

もちろん、家全体をコンパクトにするって手段もあると思います。

その場合、リビングを小さくする・収納を削るなど、必ず何かを犠牲にしないといけないんです。。

でも、31帖の大空間LDKも、家中に配置した収納も、なに1つとして捨てたくありませんでした。

じゃあどうするか?
回遊することを目的にせず、生活しやすい動線を優先しました。

②快適すぎる導線

そもそも平屋は階段がないだけで圧倒的に楽なんです!

2階建ての場合、洗濯・脱衣室は1階で、ランドリールームとクローゼットが2階にあると
洗濯した大量の服を抱えたまま階段を何往復もしないといけないんですよね~

しかも、2階で過ごしてて1階のトイレに行く・飲み物取りに行くだけで1階に行くなど
小さなストレスが重なるという声も実際に聞くんですよね。。

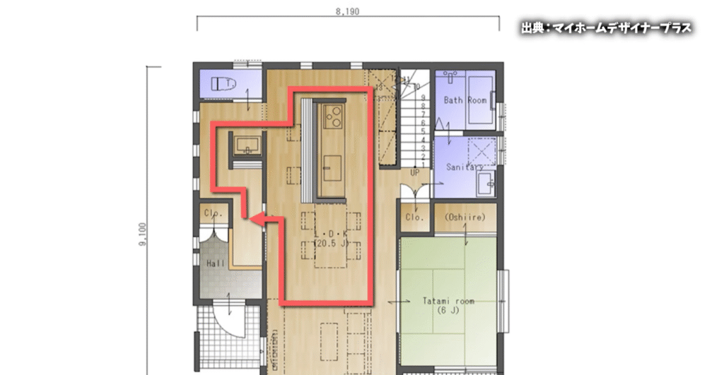
導線で特にこだわったのが水回り(脱衣室、洗面、ウォークインクローゼット)を一直線に並べること。
いわゆる超絶家事楽動線を採用することで、洗濯における「めんどくさい」を排除しようという作戦です。

例えば、一般的に洗濯導線は
洗う→干す→たたむ→しまう
だと思うんですけど、僕たちが思う洗濯で面倒くさいことTOP2は「干す」と「たたむ」ことなんです。
(きっと同じ気持ちの人もいるはず・・!)                                 だったら徹底的にめんどくさいことを排除しよう!ということで、ドラム式洗濯機を導入しました。

すると・・・
お風呂に入る前に服を脱いで、洗濯機に放り込み(洗う)
夜寝る前にボタン一つで洗濯
翌朝には乾燥まで完了してるので、あとはクローゼットへGO!(しまう)

つまり本来
4つの動作(①洗う②干す③たたむ④しまう)が必要な洗濯が、我が家では
・洗う
・しまう
たったこれだけで完結しちゃうんです!!

しかも洗濯機からクローゼットまで約55歩で済むようになりました!!
楽すぎる…(泣)

しかも洗濯導線としてだけではなく、生活導線としても優秀なんです!
・朝の支度
・仕事から帰ってきた後の着替え
・手洗い
・歯磨き
・着替え
これら全部が導線内で完結するので日々の生活がめちゃくちゃ快適になりました。

階段がないという平屋の強みに加えて、水回りの動線にもこだわることで、格段に住みやすくなるので、ぜひこだわってみてはいかがでしょうか。

③ゆる~くつながる間取

ワンフロアの平屋ならではの特徴として、お互いの気配を感じやすい間取りを重視しています。

なるべくお互いの時間を持ちたい!という方ももちろんいると思います。
一方で僕たちのように「常にお互いの気配を感じる安心感に包まれた暮らしたい」と感じる方もいるのではないでしょうか?

LDKには6つの居場所(リビング、キッチン、ダイニング、小上がりワークスペース、内窓でつながるネイル部屋、タイルデッキ)があり、どの場所にいてもお互いの気配を程よい距離感で感じられるように設計されています。

ずっと監視されているみたいで嫌だという方も、ゆる~く気配を感じる空間であれば、心地が良いかもしれませんね!

また、子育て世帯にとっては
・目を離した隙に、よくわからないものを食べている
・やけに静かだなあと思ったら壁に落書きしている
・ティッシュを無限に出して謎の遊びをしている
など、とにかく心が落ち着かないという声もよく聞きます。

子どもを目が届く範囲で遊ばせられる。その安心感ってかなり大きいのではないでしょうか?

さらに、ペットの気配も感じられるので、家族とペットが共存しながら温かい日常を過ごすことができますね。

あえての段差

平屋には
・高さの変化がない
・床も天井もフラット
・視線もまっすぐ抜ける
など、空間全体が単調に見えやすい特徴があるんです。

そんな「のぺーっとした印象」を避けるため、リビングから3段上がった小上がりのワークスペースをあえて作りました。

結果、段差による高低差で目線に変化が生まれ、同じフロアでも異なる空間のような印象になったんです。
さらに、脳内で「頑張る場所」と「だらける場所」が区別され、作業への集中力を生み出すメリットもありました。

たった3段、されど3段。段差を侮ってはいけません。

ドイツの心理学者が提唱した「場の理論」というものもありまして、人間の行動は、その人とその人がおかれている環境の相互作用によって決まるらしいです。

難しいことはわかりませんが、つまりは環境ダイジ!!(アバウト)ということですね~

ちなみに他にも
・畳の小上がり(写真左下)
・ヌック(写真中央上)
・逆にリビングを一段下げる(写真右下)
など、空間にメリハリをつくる方法はいくつかあるので、家族のライフスタイルとか好みに合わせて検討してみてくださいね~

⑤収納計画

平屋では、収納専用のスペース確保がコスト増加につながるため、収納計画は難しいといわれています。

ただ…我が家の収納は大成功だと考えています!
では何をしたのか?
それは、細々とした収納を家中に適材適所に散りばめる工夫をしました。

例えば
・土間収納
・ウォークインクローゼット
・カップボード
・キッチンの前面収納
・ダイニングの横に幅4mのカウンター収納
・ワークスペース部分に掃除機とかを入れておく用の収納

つまり、必要な場所の近くに収納を作ったことで、物を取りに行くという無駄な動きが減り、生活が格段にしやすくなりました。

使う場所に必要な分だけ/収納を作る。これが収納計画の極意です。

⑥窓を極限まで減らす

平屋の防犯対策の難しさ(1階に窓が多くなる)に対処するため、窓の数をわずか5個に減らしました。

玄関、洗面、トイレ、脱衣室、お風呂には窓がなく、LDKの大開口には積水ハウスの「防犯配慮ガラス」を採用し、侵入に5分以上かからせる対策を講じています。

なぜ5分かというと、泥棒って侵入に5分以上かかると7割が諦めるって言われてるんですよね~
※警視庁調べ

まあ、5分以上侵入にごたついていると、そりゃあ焦りMAXですよね笑
そんなわけで、セキュリティ対策もバッチリできているというわけです

⑦視点を変えた空調管理

空調管理って意外に難しいんですよね~

特に水回りが難関。。。

普通の家だったらLDKとの間のドアを開けておくことで解決なのですが
なんと我が家は、猫の行動範囲をLDKだけに制限しているため、LDKは常時閉めているんです。

つまり、水回りのエリアが完全に隔離されてるんです。。

何とかならないかと考えた結果
【視点を変えること】で解決出来ちゃいました♪

具体的には、寝室と水回り全体を一つの空間として捉え、寝室のエアコン1台でエリア全体の空調を管理する方法を
採用しました。

これは寝室と水回りが別々の階になりがちな2階建てだと絶対に実現できなかった方法。
平屋だからこそできた間取りなんです!

実際に6ヵ月住んでみた感想(まとめ)

平屋での暮らしを総括して、改めて実感するのは、間取りの工夫がもたらす圧倒的な快適さです。

平屋の最大の魅力である「階段のない暮らし」は、想像以上に生活動線をシンプルにしてくれました。

特に水回りは、脱衣室、洗面、ウォークインクローゼット(WIC)を一直線に配置する「超絶家事楽動線」 を採用することで、洗濯が「洗う」と「しまう」のたった2ステップで完了します。

洗濯機からWICまでわずか数歩という快適さは、まさに平屋ならではの成功ポイントです。

また、ワンフロアの特性を活かし、家族の気配を常に感じられる「ゆるくつながる間取り」も実現できました。

LDKには6つの居場所(リビング、キッチン、ワークスペースなど)を設け、どこにいても程よい距離感で繋がっている感覚は、心地よい安心感を与えてくれます。

よかったらシェアしてね!
  • URLをコピーしました!
  • URLをコピーしました!

この記事を書いた人

コメント

コメント一覧 (1件)

コメントする

目次